Productos

VER TODAS

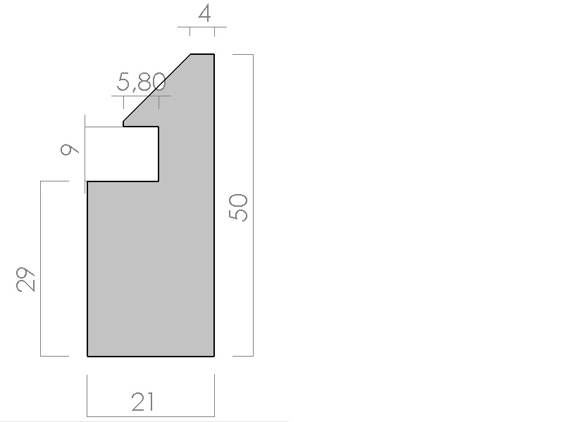
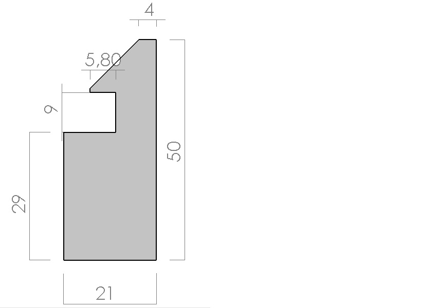
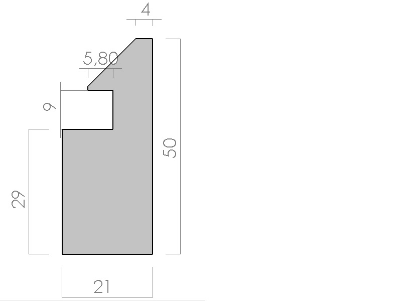
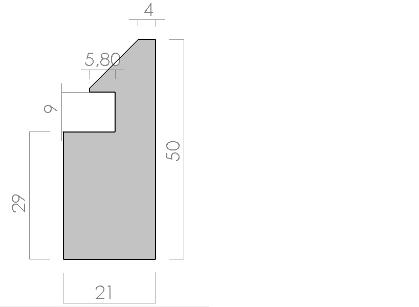
Molduras para Marcos

.

Molduras para Marcos
Lista 150 Productos em Hot Stamping Finalizar Presupuesto
Carregando CARGA...